
CAD Services
Bauzeichnungen und Dienstleistungen
Freiberuflicher Bauzeichner - Ihr Bauprojekt in guten Händen.

Nico Kramm
UNSERE LEISTUNGEN

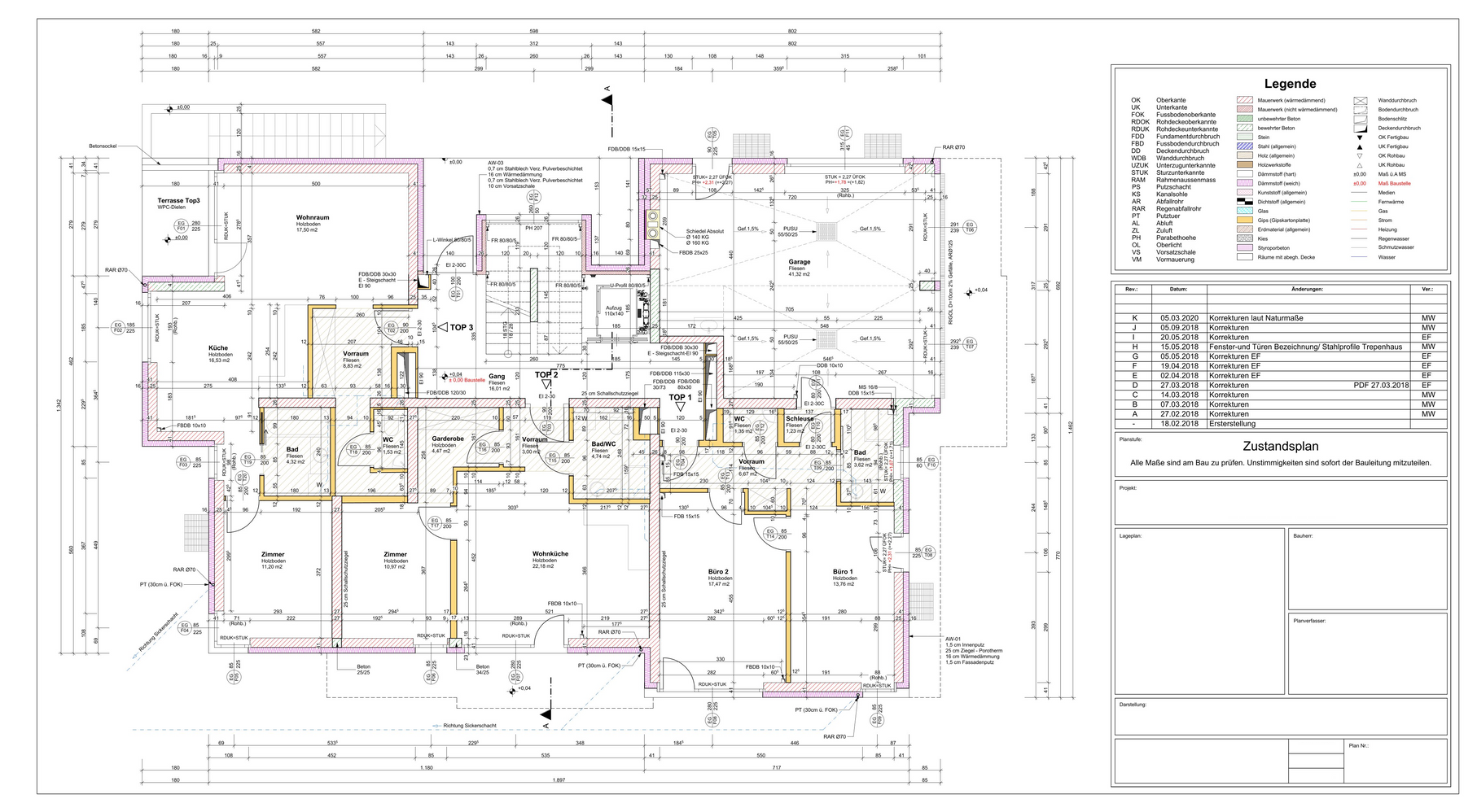
BESTANDSPLÄNE
Vor-Ort-Aufmaß oder Digitalisierung von Altplänen. Wir helfen Sie dabei!

Bauzeichnungen
Wir erstellen Bauzeichnungen jeglicher Art entsprechend Ihren individuellen Anforderungen und Bedürfnissen.
3D-Visualisierung
Übermitteln Sie komplexe Ideen klar und einfach. Wir setzen Ihre Ideen um.

Vorwort
Mit modernster 3D-Software setze ich Ihre Ideen um und erstelle die erforderlichen Baupläne für Sie.
Wir unterstützen Sie bei sämtlichen Schritten Ihres Bauprojekts. Unser Ziel ist es, Ihnen Raum zu schaffen, damit Sie sich auf das Wesentliche konzentrieren können – sei es Ihr geschäftlicher Fokus oder kostbare Momente mit Ihrer Familie.
Unser Versprechen: Schnelligkeit, Sicherheit und Wirtschaftlichkeit.
Als freiberuflicher Bauzeichner mit fast 30 Jahren Berufserfahrung biete ich Ihnen ein umfangreiches Leistungsspektrum im Bereich der Bauplanung an.
Unsere Kunden schätzen uns für unsere Verlässlichkeit und unser Engagement.
Ihre Vorteile
Ihr Bauprojekt in besten Händen: Mit Ihrem freiberuflichen Bauzeichner – Effizient, schnell und kostengünstig.
Effizienz
Effiziente und verlässliche Auftragsabwicklung durch Optimierte Arbeitsabläufe und schnelle Umsetzung Ihrer Wünsche.
Zeitersparnis
Schnelle Bearbeitung Ihrer Anfragen und zügige Projektumsetzung, so dass Sie mehr Zeit für Ihre Kernaufgaben haben.
Kostenersparnis
Klare Preisgestaltung ohne Fixkosten durch Personal. Ich stelle Ihnen flexible Preismodelle zur Verfügung.
Partnerschaft
Individuelle Betreuung und kurze Entscheidungswege.
Langfristige und vertrauensvolle Zusammenarbeit

Bauen Sie auf Visionen: 3D-Visualisierung im Hochbau.
Mit fotorealistischen Modellen erleben Sie Entwürfe hautnah, optimieren die Planung, begeistern Kunden und minimieren Kosten.
Investieren Sie jetzt in die Zukunft des Bauens!

3D-Visualisierungen für begeisternde Präsentationen.

CAD Services
Bauzeichnungen und Dienstleistungen
Nehmen Sie einfach Kontakt mit mir auf, um ein kostenloses und unverbindliches Beratungsgespräch zu vereinbaren.
Ich freue mich auf Ihre Anfrage!
Kontakt
CAD Services e.U
Adresse:
Hauptstraße 42
7444 Klostermarienberg
E-Mail:
cadservices@gmx.at
Website:
https://cadservices.at/
Kontakt direkt über Whats App

oder per E-Mail
REFERENZEN
Um die Datenschutzbestimmungen einzuhalten und aus Respekt für Einzelpersonen, Unternehmen, Bauherren usw. wurden alle Namen und persönlichen Daten unkenntlich gemacht!
Beispiele 3D-Visualisierungen
3D-Visualisierungen - Videos
Gerne setze ich auch Ihre Ideen um.
Holen Sie sich ein kostenloses Angebot.
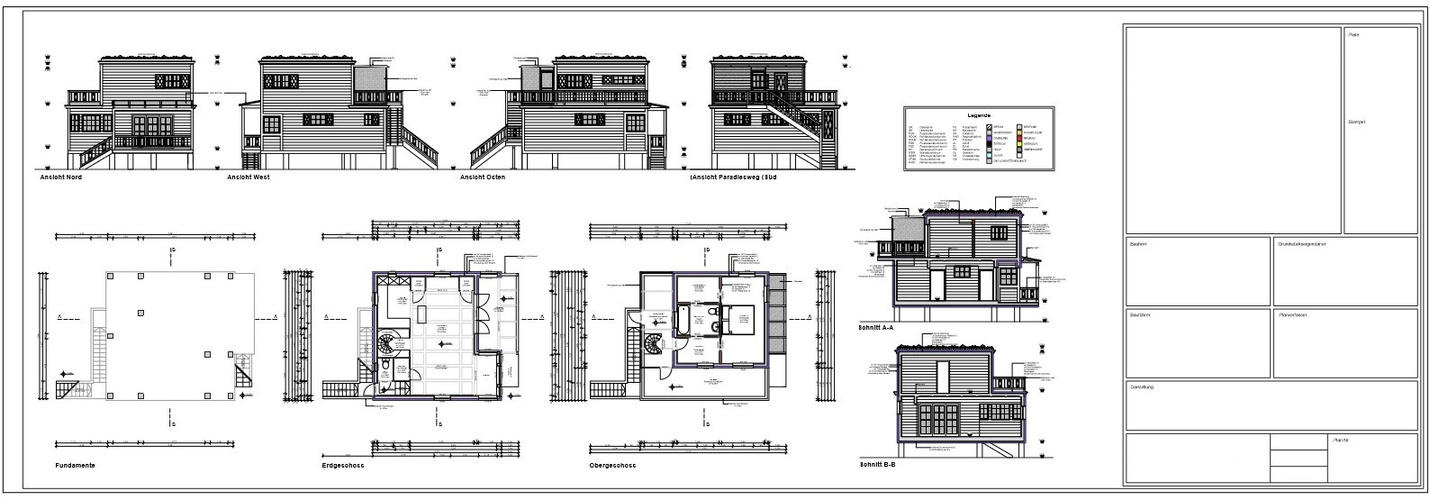
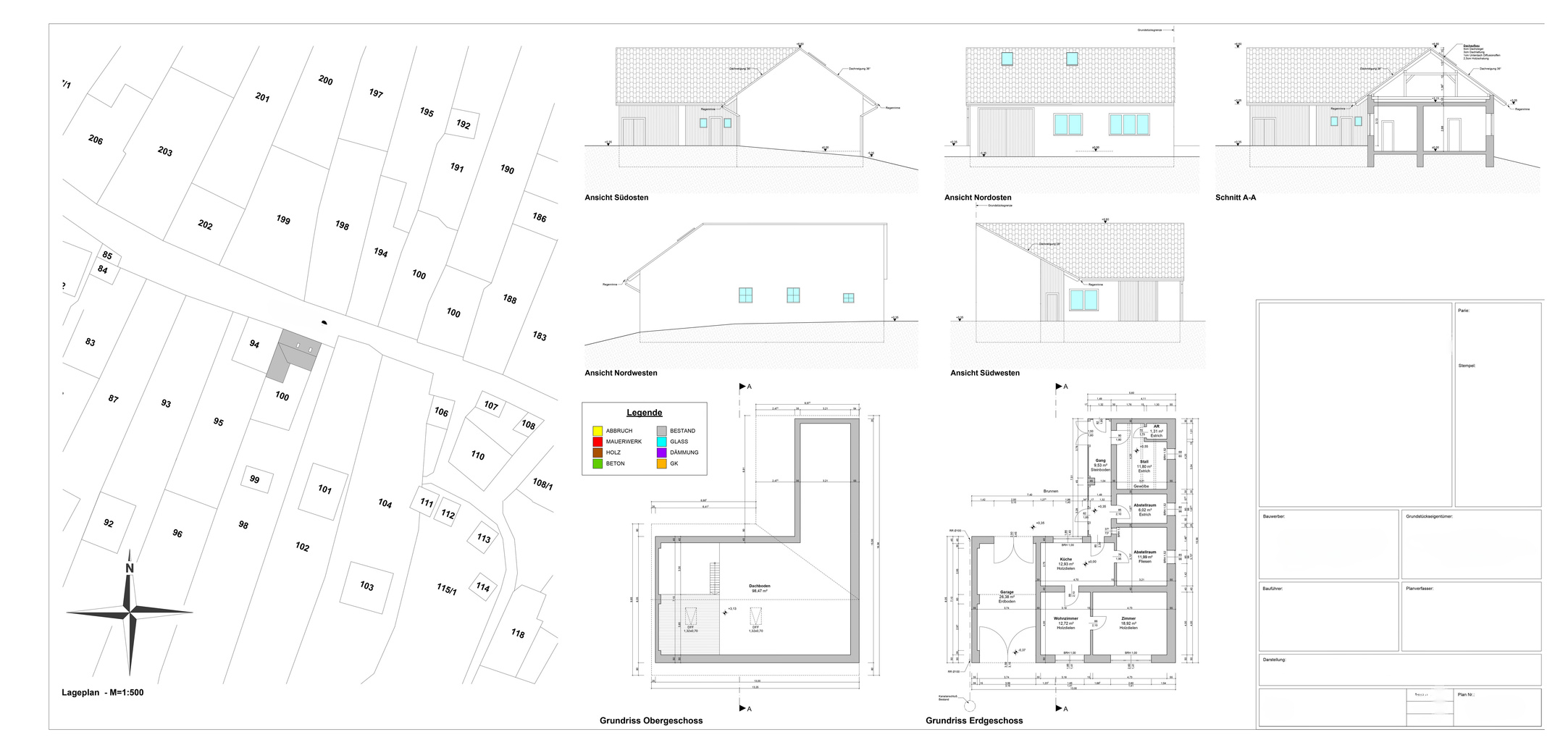
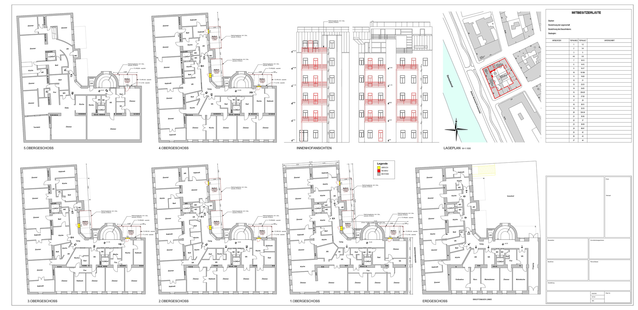
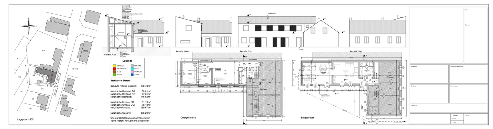
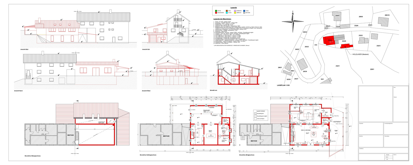
Beispiele für Bauzeichnungen


















Über mich, Nico Kramm – freiberuflicher Bauzeichner
Seit 1993 zeichne ich mit Leidenschaft! Von der Pike auf gelernt und stets am Puls der Zeit.
Meine Karriere als Bauzeichner begann 1993. Angefangen mit Bleistift und Tusche, tauchte ich später in die Welt des CAD ein (Archicad 4.5, AutoCAD & mehr).
Vielseitige Tätigkeiten dank Hochbauausbildung
Meine Ausbildung ermöglicht mir mehr als nur Zeichnen. Meine berufliche Laufbahn verlief durch verschiedene Unternehmen und unterschiedliche Stellen, aber ständig führten sie mich immer wieder auf die Baustellen. Dort sammelte ich sehr viel Praxiswissen als Bauarbeiter selbst (vom Rohbau bis zur Fertigstellung), mal als Bauschlosser oder als Bauaufsicht von verschiedenen Anlagen.
Baupraxis als Schlüssel zum Erfolg
Ich bin fest davon überzeugt, dass ein Bauzeichner erst durch praktische Erfahrungen auf Baustellen den gesamten Prozess, den Aufbau, die Funktionen und die richtige Dimensionierung von Plänen wirklich verstehen kann.
Selbstständiger Bauzeichner mit Herzblut
Nach ersten freiberuflichen Jahren (2002-2008) und einem kurzen Umdenken aufgrund der Finanzkrise 2008, verwirklichte ich 2024 wieder meinen Traum: Seitdem arbeite ich wieder als selbständiger Bauzeichner.
Ihr Partner für Baupläne und 3D-Visualisierungen
Heute erstelle ich im Auftrag von Planern Baupläne für den Hochbau und 3D-Visualisierungen für Architekten, Ingenieure, Bauträger und viele mehr.
Fast 30 Jahre Erfahrung für Ihre Projekte
Mit fast 30 Jahren Berufserfahrung, Fachwissen und stets höchster Qualität stehe ich Ihnen zur Verfügung. Meine Preise sind flexibel und fair und richten sich nach Ihren Bedürfnissen an (Pauschale oder Stundenweise).
Ihre Zufriedenheit ist meine höchste Priorität.
Qualifikationen
Von ganzem Herzen Danke!
Möchte an diese Stelle die Gelegenheit nutzen, um meine tiefste Dankbarkeit an alle Unternehmen und all die Personen auszudrücken, die mich in den vergangenen Jahren unterstützt haben. Ohne eure Hilfe und euer Vertrauen wäre es mir nicht möglich gewesen, meine Ziele zu erreichen und dorthin zu gelangen, wo ich heute stehe.
Mein besonderer Dank gilt den folgenden drei Unternehmen und Personen, die mich von Anfang an, auf ganz besondere Weise unterstützt haben:
An Herr Arch. Dipl.-Ing. Matthias Willmann
In tiefster Dankbarkeit blicke ich auf 20 Jahre voller Unterstützung und Vertrauen zurück, lieber Herr Willmann - Sie haben maßgeblich zu meinem Erfolg beigetragen und ich bin unendlich dankbar für unsere einzigartige Zusammenarbeit!
An Herrn Manfred Rutzenholzer, Leiter der BFBU, und an sein Team.
Mit Begeisterung und Dankbarkeit blicke ich auf unzählige gemeinsame Projekte mit der BFBU zurück - Ihre Unterstützung, Herr Rutzenholzer, war dabei der Schlüssel zum Erfolg!
An die Firma Verbund AG
Mit Verbund verbinde ich nicht nur unzählige geologische Pläne in Wien und Salzburg, sondern auch eine tiefe Dankbarkeit für die stets vertrauensvolle und inspirierende Zusammenarbeit!
Ein herzliches Dankeschön geht auch an die Firma Kopf Christian GmbH für ihre langjährige Unterstützung und Großzügigkeit, die immer allen geholfen hat, sowie für die fortwährende persönliche Unterstützung, die ich erfahren durfte.
Natürlich gilt mein Dank auch allen anderen Unternehmen und Personen, die mich in den letzten 20 Jahren auf ihrem Weg unterstützt haben. Durch eure Zusammenarbeit, euer Fachwissen und eure Ermutigung konnte ich wachsen und lernen.
Ich bin zutiefst dankbar für die Zusammenarbeit und Erfahrungen, die mir durch eure Unterstützung ermöglicht wurden. Ich werde diese Unterstützung niemals vergessen und trage sie stets in meinem Herzen.
Mit herzlichem Dank,
Nico Kramm
"Ihr Projekt könnte hier
schon bald seinen Platz finden."